Save
Ask
Tour
Hide
$16,888,888
266 Days On Site
30 Rambler DriveBrampton, ON L6W 1E2
For Sale|Retail|Active
0
Beds
0
Total Baths
2.2
SqFt
$7,676,767
/SqFt
County:
Peel
Call Now: (647) 360-6433
Is this the listing for you? We can help make it yours.
(647) 360-6433


Save
Ask
Tour
Hide
Mortgage Calculator
Monthly Payment (Est.)
$77,054Calculator powered by Showcase IDX, a Constellation1 Company. Copyright ©2026 Information is deemed reliable but not guaranteed.
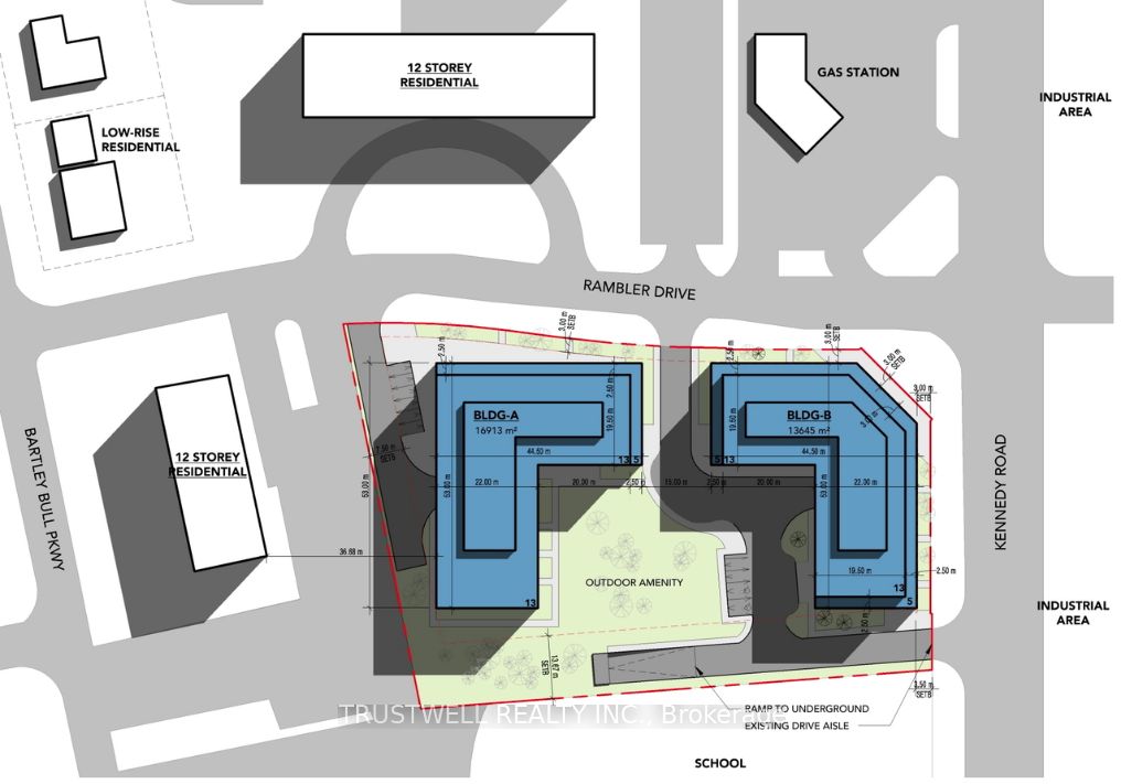
Located At Rambler Dr / Kennedy Rd S. High Traffic Area. Corner Plaza. Potential For Mixed-Use Commercial & Residential Condo Redevelopment. Potential To Develop To High Density For Low-Cost Rental House Project. Well Steady Tenants. Seller Is Retiring And Motivated To Sell. Ideal For Long-Term Investment Or Convert To Low-Rental Project.
Save
Ask
Tour
Hide
Listing Snapshot
Price
$16,888,888
Days On Site
266 Days
Bedrooms
N/A
Inside Area (SqFt)
2.2 sqft
Total Baths
N/A
Full Baths
N/A
Partial Baths
N/A
Lot Size
N/A
Year Built
N/A
MLS® Number
W12140362
Status
Active
Property Tax
$127,124.51
HOA/Condo/Coop Fees
N/A
Sq Ft Source
N/A
Friends & Family
Recent Activity
| 3 months ago | Listing updated with changes from the MLS® | |
| 3 months ago | Status changed to Active | |
| 6 months ago | Price changed to $16,888,888 | |
| 9 months ago | Listing first seen on site |
General Features
Cross Street
Kennedy Rd / Rambler Dr
Property Sub Type
Retail
SqFt Total
2.2
Water Source
Public
Zoning
C2-3161
Interior Features
Cooling
Heating
Forced Air
Save
Ask
Tour
Hide
Community Features
MLS Area
Brampton
Listing courtesy of TRUSTWELL REALTY INC.
Listing information is provided by Participants of the Toronto Real Estate Board. VOW information is provided exclusively for personal, non-commercial use, and may not be used for any purpose other than to identify prospective properties consumers may be interested in purchasing. Information is deemed reliable but not guaranteed. Copyright 2026, Toronto Real Estate Board
Last checked 2026-02-01 09:06 PM UTC
Listing information is provided by Participants of the Toronto Real Estate Board. VOW information is provided exclusively for personal, non-commercial use, and may not be used for any purpose other than to identify prospective properties consumers may be interested in purchasing. Information is deemed reliable but not guaranteed. Copyright 2026, Toronto Real Estate Board
Last checked 2026-02-01 09:06 PM UTC
Neighborhood & Commute
Source: Walkscore
Disclosure: Community information and market data powered by Constellation Data Labs. Information is deemed reliable but not guaranteed.
Save
Ask
Tour
Hide



Did you know? You can invite friends and family to your search. They can join your search, rate and discuss listings with you.