229 Harris AvenueRichmond Hill, ON L4E 3M3




Mortgage Calculator
Monthly Payment (Est.)
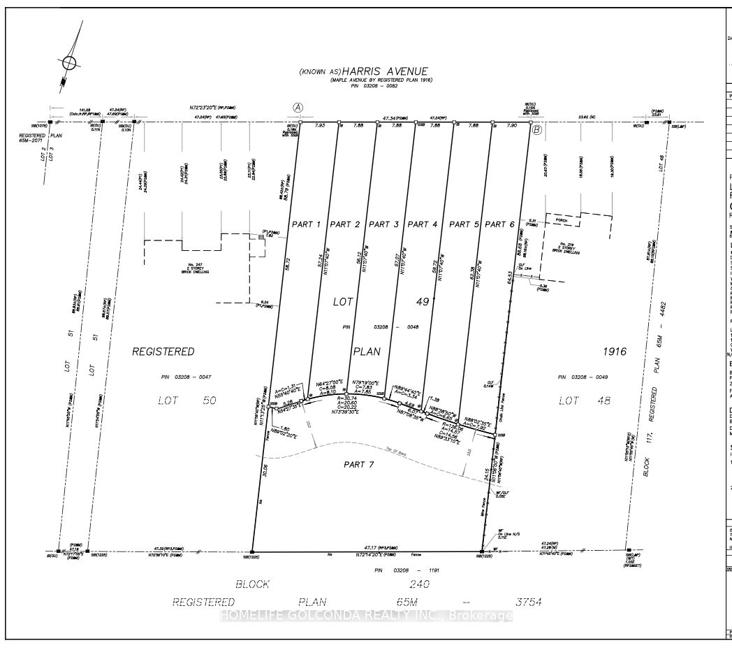
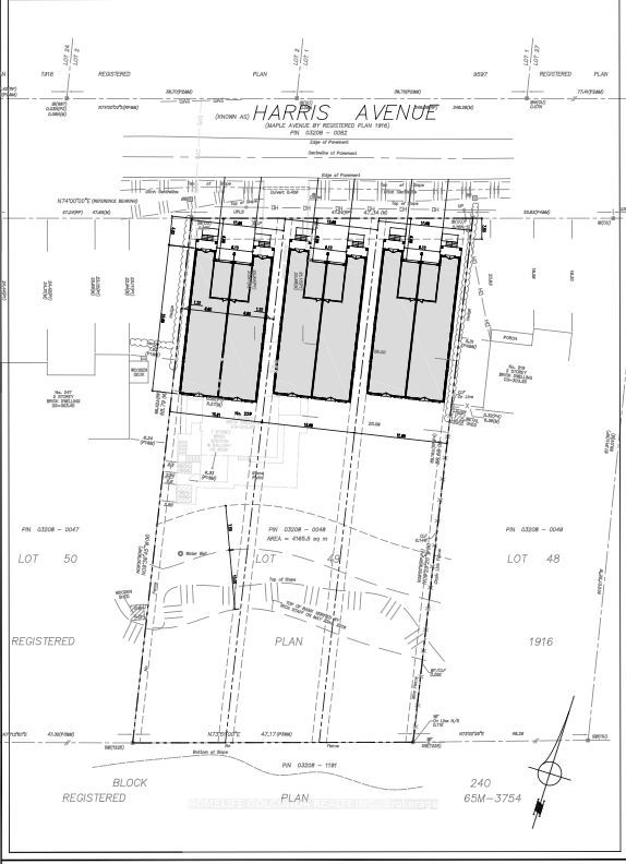
$17,702*ATTN BUILDERS AND INVESTORS* ZONING APPROVED, SERVICED SEMI-DETACHED DEVELOPMENT ** The property has aconditionally approved consent application for a 6-unit SEMI-DETACHED. Approval is progressing in the process of satisfying theengineering conditions (final stage). Once conditions are met, you can apply for a building permit. Buyers can move forward knowing theapplication is in an advanced stage, pending final steps. The lots are being FULLY SERVICED. Each unit has a side entrance to the basement.Units range approximately 2,700 sqft. in size, with long, deep, and back to the ravine. Extremely well located in the affluent & sought-afterJefferson community. A construction project is underway to provide an additional area on the north side of the Site. This premier locationoffers luxury living with convenient access to top-rated schools, parks, shopping, dining, and major transit routes. Mature trees and upscaleresidences surround the serene neighbourhood. There is a 2-story home with well water and septic on the property
| 3 days ago | Listing first seen on site | |
| 3 days ago | Listing updated with changes from the MLS® |
Listing information is provided by Participants of the Toronto Real Estate Board. VOW information is provided exclusively for personal, non-commercial use, and may not be used for any purpose other than to identify prospective properties consumers may be interested in purchasing. Information is deemed reliable but not guaranteed. Copyright 2026, Toronto Real Estate Board
Last checked 2026-04-28 08:45 AM UTC


