2 Alderson Court 4New Tecumseth, ON L9R 2B7


Mortgage Calculator
Monthly Payment (Est.)
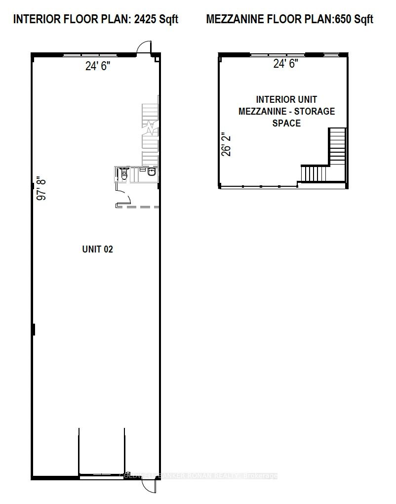
$5,470Discover a rare opportunity to own a striking, newly constructed industrial-office unit in one of Alliston's fastest-growing employment districts-ideal for businesses looking to expand operations or secure a long-term asset. 2 Alderson offers excellent visibility and convenient access to major routes, including Highway 89, with close proximity to the Honda Manufacturing & Baxter Labs facilities. Ongoing growth in the surrounding area continues to strengthen the property's long-term value and strategic positioning. Each unit features a bright, open layout with 22-foot clear ceilings, oversized 10' x 14' drive-in doors for efficient shipping and receiving, and a light-filled mezzanine. Built with durable, high-quality materials, the space is designed for flexibility and low maintenance. Zoned EA2-13, it supports a wide range of uses, including office, light manufacturing, contractor services, and research and development, making it a versatile and attractive option for both owner-occupiers and investors.
| 7 hours ago | Listing first seen on site | |
| 7 hours ago | Listing updated with changes from the MLS® |
Listing information is provided by Participants of the Toronto Real Estate Board. VOW information is provided exclusively for personal, non-commercial use, and may not be used for any purpose other than to identify prospective properties consumers may be interested in purchasing. Information is deemed reliable but not guaranteed. Copyright 2026, Toronto Real Estate Board
Last checked 2026-04-21 03:50 AM UTC


