Save
Ask
Tour
Hide
$9,500,000
14 Days On Site
415 Pickering CrescentNewmarket, ON L3Y 8G8
For Sale|Unimproved Land|Active
0
Beds
0
Total Baths
2
SqFt
$4,750,000
/SqFt
County:
York
Call Now: (647) 360-6433
Is this the listing for you? We can help make it yours.
(647) 360-6433



Save
Ask
Tour
Hide
Mortgage Calculator
Monthly Payment (Est.)
$43,343Calculator powered by Showcase IDX, a Constellation1 Company. Copyright ©2026 Information is deemed reliable but not guaranteed.
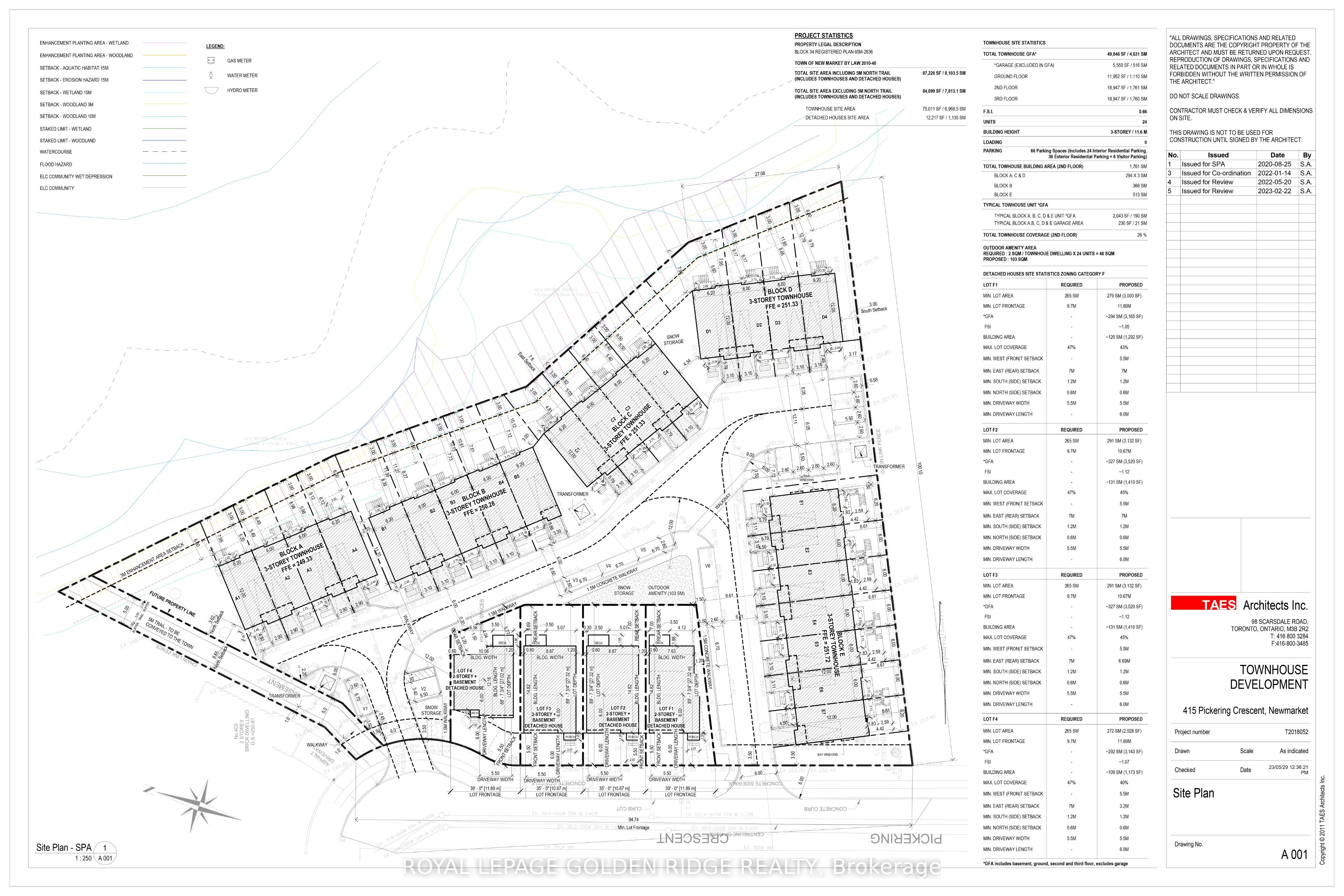
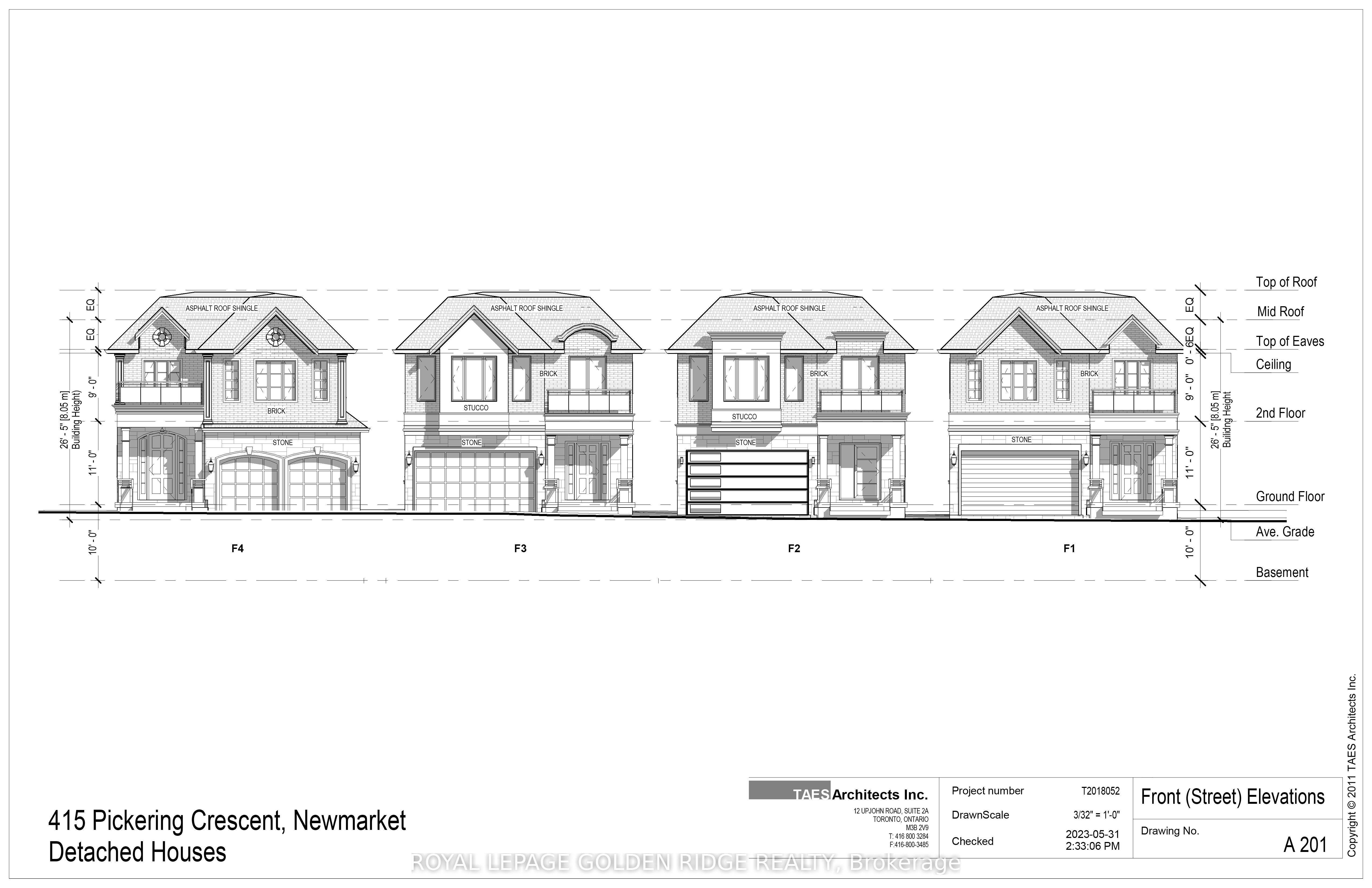
Attention to Builders/Investors! Zoning Approved By Town of Newmarket For 4 Detached Houses & 24 Townhouses. Excellent Location Beside Newmarket High School. Surrounded By Mutual Residential Communities. Minutes To HWY 404, Magna Community Centre, Shopping Plaza & Schools. Back On Ravine and Natural Trails.
Save
Ask
Tour
Hide
Listing Snapshot
Price
$9,500,000
Days On Site
14 Days
Bedrooms
N/A
Inside Area (SqFt)
2 sqft
Total Baths
N/A
Full Baths
N/A
Partial Baths
N/A
Lot Size
N/A
Year Built
N/A
MLS® Number
N12664780
Status
Active
Property Tax
$32,868.3
HOA/Condo/Coop Fees
N/A
Sq Ft Source
N/A
Friends & Family
Recent Activity
| 2 weeks ago | Listing first seen on site | |
| 2 weeks ago | Listing updated with changes from the MLS® |
General Features
Cross Street
Mulock/Pickering Cres
Property Sub Type
Unimproved Land
SqFt Total
2
Water Source
Public
Zoning
(H)R4-R-167; (H)R4-F-168
Interior Features
Heating
Forced Air
Save
Ask
Tour
Hide
Exterior Features
Lot Features
Greenbelt
Listing courtesy of ROYAL LEPAGE GOLDEN RIDGE REALTY
Listing information is provided by Participants of the Toronto Real Estate Board. VOW information is provided exclusively for personal, non-commercial use, and may not be used for any purpose other than to identify prospective properties consumers may be interested in purchasing. Information is deemed reliable but not guaranteed. Copyright 2026, Toronto Real Estate Board
Last checked 2026-01-20 10:37 AM UTC
Listing information is provided by Participants of the Toronto Real Estate Board. VOW information is provided exclusively for personal, non-commercial use, and may not be used for any purpose other than to identify prospective properties consumers may be interested in purchasing. Information is deemed reliable but not guaranteed. Copyright 2026, Toronto Real Estate Board
Last checked 2026-01-20 10:37 AM UTC
Neighborhood & Commute
Source: Walkscore
Disclosure: Community information and market data powered by Constellation Data Labs. Information is deemed reliable but not guaranteed.
Save
Ask
Tour
Hide



Did you know? You can invite friends and family to your search. They can join your search, rate and discuss listings with you.