82 Lanark AvenueToronto C03, ON M6E 2G4




Mortgage Calculator
Monthly Payment (Est.)
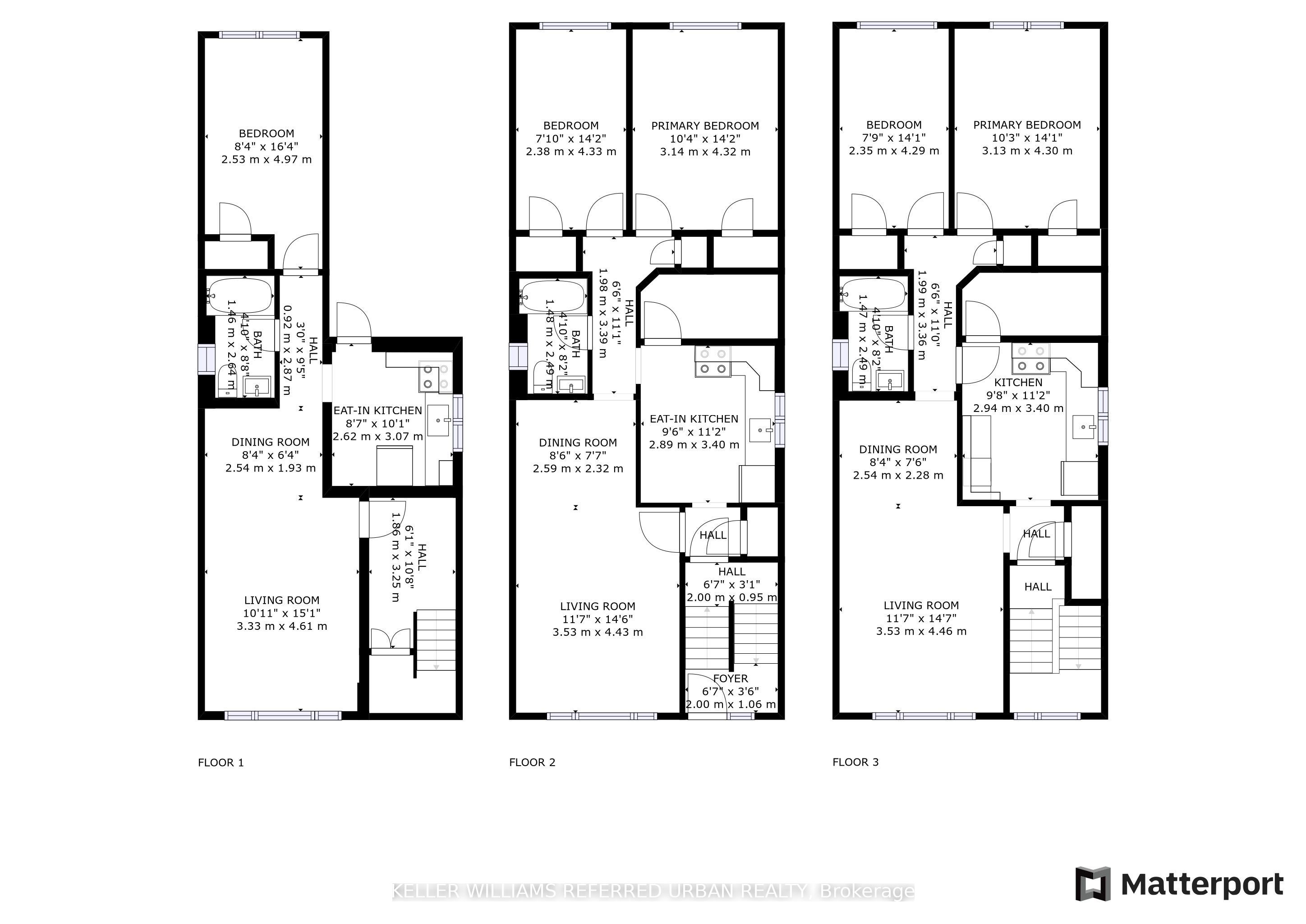
$7,752Great investment opportunity in a prime transit-oriented location along the new LRT line! Live in one unit and rent out the other two, or enjoy all three levels as a spacious home for the entire family. This well-maintained triplex features 3 separately metered units, parking, and excellent income potential. Conveniently located just steps to Eglinton West Station on the University line, and minutes to Allen Road, Highway 401, and downtown Toronto. Enjoy unbeatable convenience with shopping, restaurants, schools, and everyday amenities all within walking distance - an ideal property for investors, multigenerational families, or savvy homeowners looking to offset their mortgage with rental income.
| a month ago | Listing first seen on site | |
| a month ago | Listing updated with changes from the MLS® |
Listing information is provided by Participants of the Toronto Real Estate Board. VOW information is provided exclusively for personal, non-commercial use, and may not be used for any purpose other than to identify prospective properties consumers may be interested in purchasing. Information is deemed reliable but not guaranteed. Copyright 2026, Toronto Real Estate Board
Last checked 2026-04-04 06:19 PM UTC


