1926 NATALEN ROADWINTER PARK, FL 32792




Mortgage Calculator
Monthly Payment (Est.)
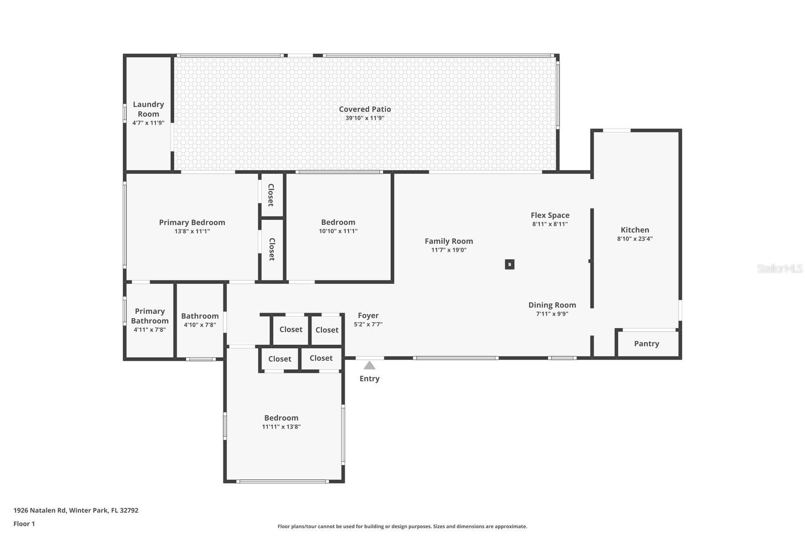
$2,965***MUST SEE WINTER PARK POOL HOME*** Explore the virtual tours to fully appreciate the beauty of this completely renovated 3 bedroom/2 bath solid block pool home nestled in the highly desirable Kenilworth Shores community in Winter Park. This move-in-ready home features an open layout with vaulted ceilings and an abundance of natural light, highlighted by a large free-flowing kitchen with all the amenities... new stainless-steel GE appliances, elegant quartz countertops, sturdy oversized soft-close shaker cabinets and two large built-in wall pantries. The open living area includes a cozy formal dining room with additional countertop seating, and a picturesque sliding glass door opens to an extra-large 40 x 12 outdoor covered porch that provides additional casual outdoor living space. The spacious primary bedroom has a vaulted ceiling and his/her closets, with private access to the backyard covered porch, and features a fully renovated en-suite bath. The secondary bathroom has been tastefully upgraded, as well. Freshly painted inside and out, this immaculate home has new waterproof LVP flooring throughout, new light fixtures and ceiling fans, and stylish window shade coverings on every window. With an indoor laundry room and a two-car carport, this worry-free home features a new AC unit installed in 2025, a new electrical panel and updated plumbing, and a roof that was replaced in 2018. Setting this home apart is your private outdoor private backyard oasis, showcasing a gorgeous 32 ft long/10 ft deep in- ground pool plus a unique outdoor kitchen . . . perfect for family gatherings or hosting a Bar-b-que pool party . . . and with a generously sized 10’ x 18’ shed with full electric providing additional storage solutions or living options, this fully fenced-in backyard is truly a tranquil outdoor haven. Zoned for excellent Winter Park schools, this home is located four blocks from Winter Park High and less than a mile from Brookshire Elementary and Glenridge Middle. It comes with deeded access to the boat ramp and fishing dock at Lake Berry. Blue Jacket Park and Cady Way Park are just down the street, showcasing great bike trails for walking and jogging. The well-known shopping and restaurants of downtown Park Avenue and Baldwin Park are just minutes away. Rollins College, UCF, Full Sail University, and Winter Pines Golf Course are all close by. And Advent Health/Winter Park Hospital is less than a mile down the street. This is a quiet, family-friendly community known for its tranquility and peaceful living. Don’t miss this opportunity to make this wonderful home your very own. Schedule your showing today.
| 3 hours ago | Listing updated with changes from the MLS® | |
| 24 hours ago | Listing first seen on site |
Listing information is provided by Participants of the Stellar MLS. IDX information is provided exclusively for personal, non-commercial use, and may not be used for any purpose other than to identify prospective properties consumers may be interested in purchasing. Information is deemed reliable but not guaranteed. Properties displayed may be listed or sold by various participants in the MLS Copyright 2026, Stellar MLS.
Last checked: 2026-03-07 03:16 AM EST



Did you know? You can invite friends and family to your search. They can join your search, rate and discuss listings with you.